Popis nemovitosti
Nezmeškejte příležitost stát se majiteli tohoto úžasného bungalovu s krásnou zahradou, který nabízí komfortní a moderní bydlení na pozemku o rozloze 989 m² v příjemné lokalitě Malešovice, v okrese Brno-venkov. Vzdálené 7 min autem od Pohořelic, 10 min od dálnice D52 a 30 min od Brna.
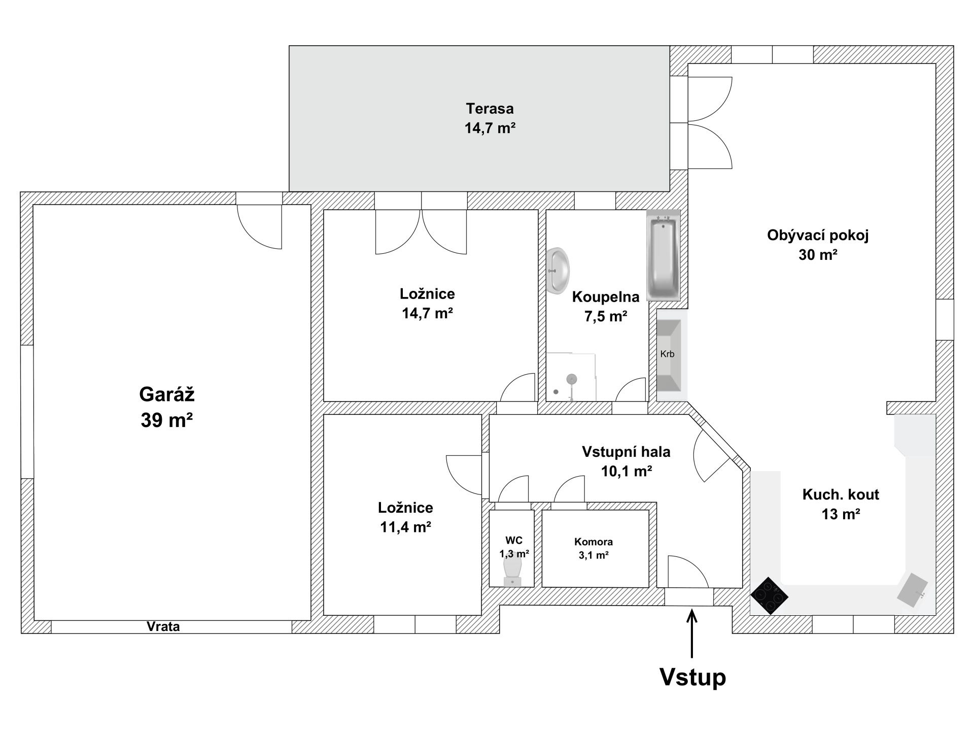
Parametry nemovitosti:
- Typ nemovitosti: samostatně stojící rodinný dům, dispozice 3+kk + šatna, koupelna s vanou a sprchovým koutem
- Obytná plocha: 91,1 m²
- Zastavěná plocha: 158 m²
- Prostorná garáž: 39 m² pro 2 vozy, technická místnost, nad garáží pochozí půda
- Velká zahrada: 831 m² se zavlažovacím systémem, okrasné keře a stromy, ideální pro zahradničení, venkovní hry a relaxaci
- Dlážděná terasa: 14,7m² pro letní posezení a grilovačku
- Studna
- Vytápění a ohřev vody: plynový kondenzační turbo kotel, podlahové vytápění + 2 radiátory, v zimních měsících dotápění pomocí krbové vložky s výměníkem
Přednosti:
- Klidná lokalita: ideální pro rodiny s dětmi, páry, jednotlivce
- Soukromí: oplocený pozemek zajišťuje dostatek soukromí
- Parkování: kromě uzavřené garáže i venkovní parkovací plocha pro 4 auta
- Občanská vybavenost: mateřská školka, obecní úřad, pošta, potraviny, základní škola Pohořelice a Loděnice
- Příroda a okolí: rybníky a řeka Jihlava II na rybaření, cyklostezky, 16 min autem Aqualand Moravia
- Bez nutnosti dalších investic: stačí tedy jen sbalit kufry, nábytek a osobní věci a můžete bydlet. Tady už je vše hotové! Měsíční náklady: cca 5 000 Kč.
Zavolejte a přijďte se podívat na svůj nový domov! Pro více informací a osobní prohlídky jsem tady pro Vás. Veškeré technické informace Vám poskytnu na osobní prohlídce.


























