Popis nemovitosti
Ve výhradním zastoupení majitele Vám nabízím ke koupi bytovou jednotku o dispozici 1+kk na ulici Wolkerova v Kuřimi. Byt se nachází ve 3. patře ze 4 panelového domu s výtahem a je vhodný jak pro vlastní bydlení, tak také jako investiční příležitost k pronájmu.
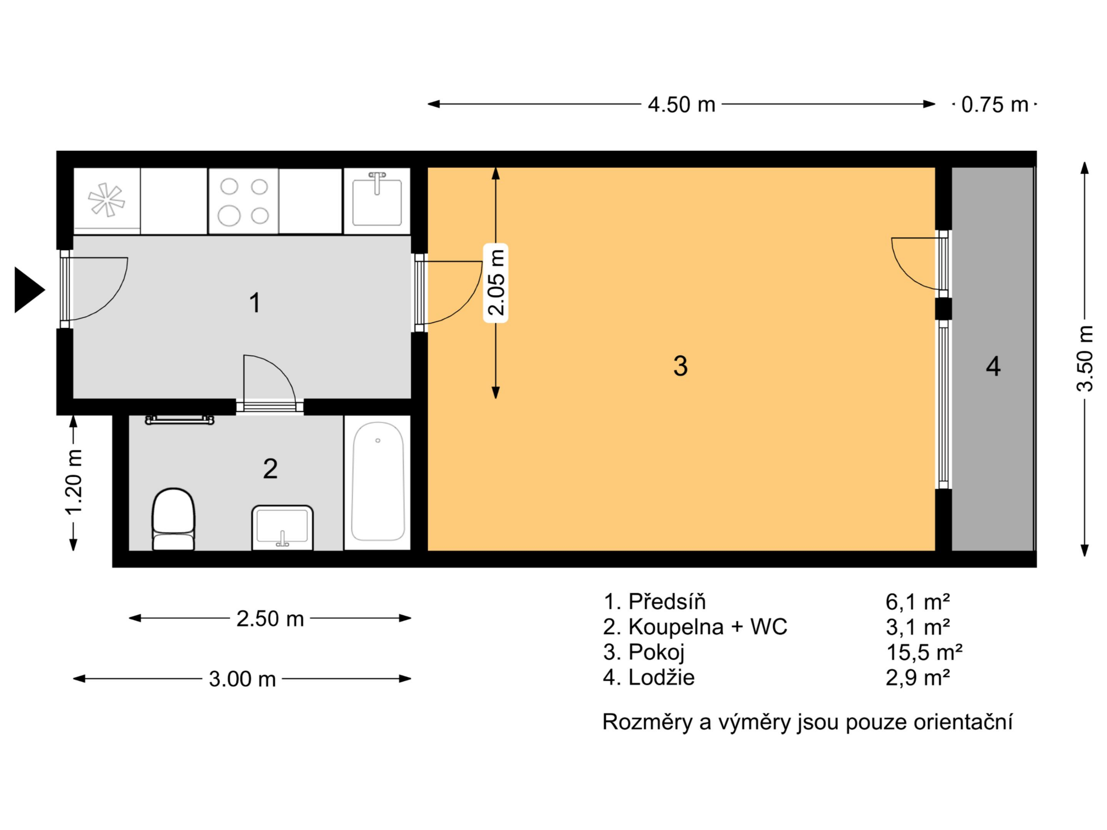
Celková podlahová plocha bytu včetně lodžie činí 27,60 m², z toho obytná plocha 24,70 m² a lodžie 2,90 m². K bytu náleží také sklep, který poskytne praktický úložný prostor.
Dispozici bytu tvoří pokoj o výměře 15,50 m², předsíň o výměře 6,10 m² s kuchyňskou linkou a koupelna s vanou a WC o výměře 3,10 m².
Byt je v původním, ale udržovaném stavu, což novému majiteli nabízí možnost úprav dle vlastních představ. V předsíni je umístěna kuchyňská linka, která nabízí možnost doplnění kuchyňského zázemí podle vlastních představ nového majitele. Současná linka není vybavena varnou deskou ani troubou. Výhodou je také elektřina v mědi.
Byt je prázdný a k dispozici ihned, takže je možné jej bez odkladu začít využívat nebo připravit k pronájmu.
Měsíční náklady činí 3.828 Kč + elektřina cca 280 Kč.
Příjemným benefitem je také lodžie s výhledem do okolí, která nabízí příjemné místo pro ranní kávu či chvíle odpočinku
Kuřim je oblíbenou lokalitou s velmi dobrou občanskou vybaveností i dopravní dostupností. V místě najdete obchody, restaurace, školy, školky, zdravotní služby, sportoviště i další služby pro pohodlné každodenní fungování. Velkou výhodou je také rychlé spojení do Brna, a to autem, vlakem i autobusem.
Tato nemovitost představuje zajímavou příležitost jak pro jednotlivce hledající vlastní startovací bydlení, tak pro investory, kteří hledají byt vhodný k následnému pronájmu.
V případě zájmu o více informací nebo sjednání prohlídky mě neváhejte kontaktovat.
Uvedené výměry jsou orientační. V inzerci byla použita vizualizace, která vychází z původního stavu bytu.













